Objet
- Etude d’exécution pour la réhabilitation lourde d’un bâtiment existant,
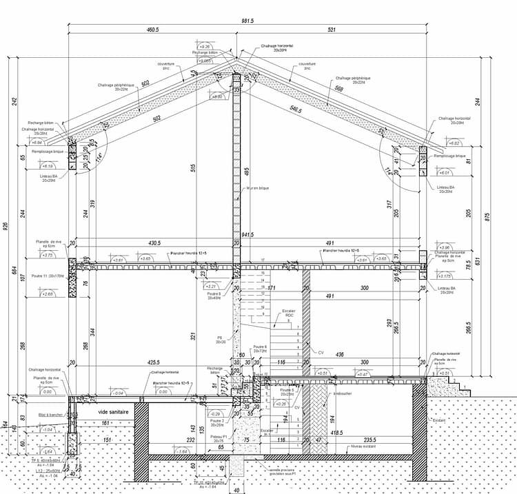
Point remarquable
- Le projet prévoit la dépose de la quasi totalité du bâtiment existant : seul sont conservés la façade sur rue et le niveau de cave,
- Le bâtiment projeté ayant une emprise plus large que l’existant (dans 3 directions), les parties en extension reposeront sur des micropieux (pour éviter de multiplier les joints de dilatation incompatibles avec le projet architectural),

